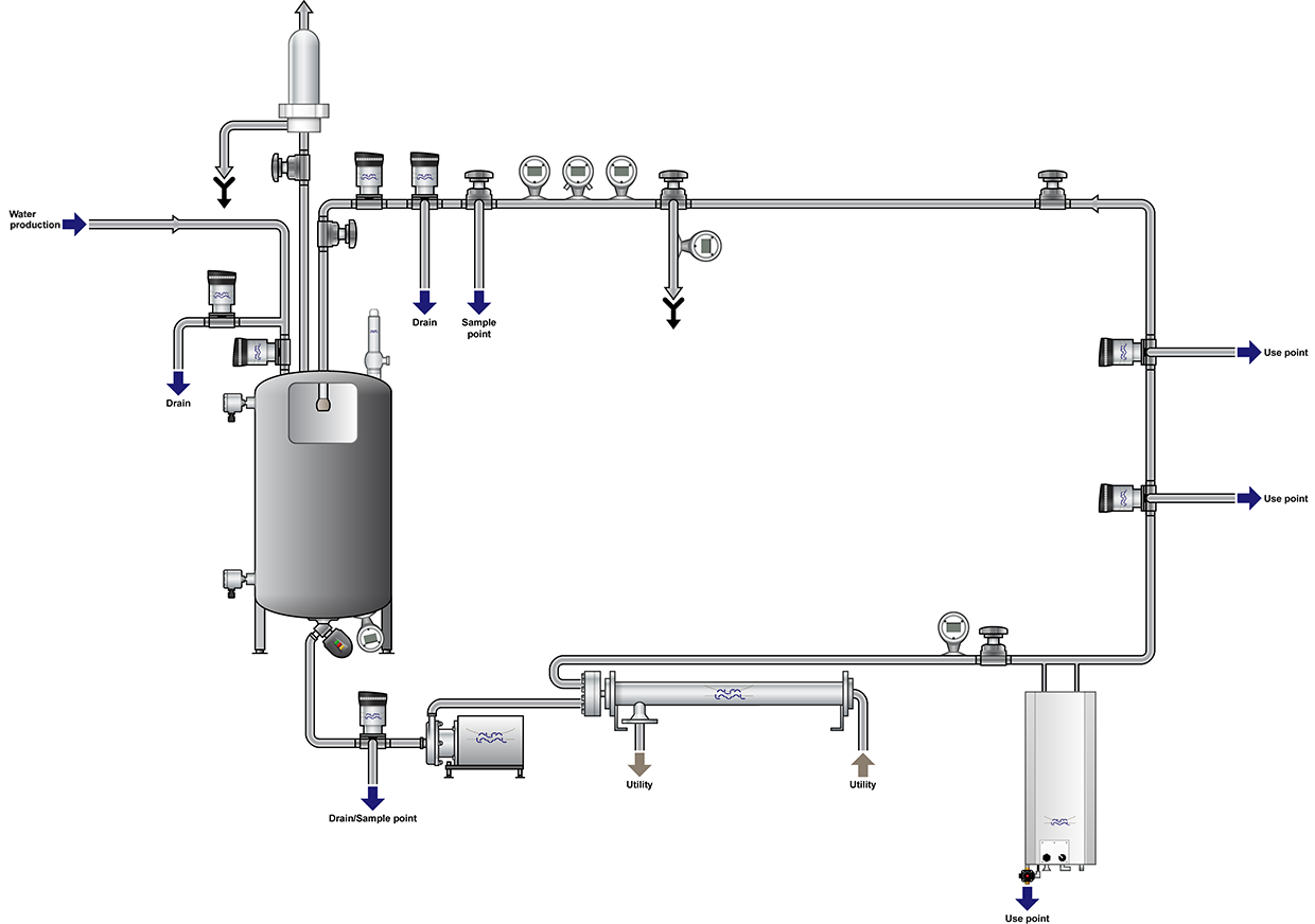
制药用水系统
水是所有制药工艺的重要成分。一旦经净化后,必须使用适当设计、安装、调试和校验的系统储存和分配非药典规定用水、纯化水或注射用水。在下方的工艺流程图中选择阿法拉伐卫生设备,了解我们针对制药用水系统的解决方案的更多信息。
阿法拉伐LKH UltraPure
这款高效可靠、具有先进卫生设计的离心泵可优化高纯度用水系统工艺流程,如纯化水或注射用水的分配。阿法拉伐LKH UltraPure泵为您带来可重复、无污染的卓越性能。此外,可轻松对其进行清洁,从而为您带来可靠的低生命周期成本生产。我们有多种方案供您选择,例如专为注射用水分配回路设计的特殊冲洗包和长效轴封,可助您轻松满足各种行业要求。
- 高效运行降低了能源成本
- 可轻松进行清洁的长效轴封,便于维护
- 减少浪费、排放量和碳排放量

阿法拉伐Unique DV-ST UltraPure隔膜阀
这款紧凑、轻巧的隔膜阀具有模块化设计,可根据用途进行各种配置,与制药用水系统的各种需求完美契合。使用规定硫含量,焊接质量卓越,同时使用优质低δ铁素体阀体,该隔膜阀可为您带来有据可查的可靠、无污染性能。
- 确保制药用水系统的安全、长期运行
- 将出现铁丹红现象的风险降至最低
- 节约能源,便于安装,提高蒸汽灭菌效率
- 所有标准阀门均装有检漏孔以便进行检测,污染风险降至最低

阿法拉伐安全阀
阿法拉伐安全阀可防止配水箱和配水管网由于突发运行情况而导致超压。这有助于实现正常运行时间最大化,保障运行安全和系统操作员安全,并保证制药用水系统的无故障、卫生运行。
- 保障并延长制药用水系统的使用寿命
- 确保系统操作员在安全的工作环境中工作
- 为运行灵活性提供支持

阿法拉伐UltraPure管道件
如果您想要在不影响质量的前提下满足制药用水系统的确切要求,请选择阿法拉伐弯管、三通管、减径管、夹具和连接件。经ASME BPE认证的阿法拉伐管道及配件可确保进行无故障焊接和组装,为您实现正常运行时间最大化和最优产品质量。 对于收发物料的材料、尺寸、标记、包装和标签,我们都会100%进行检查。作为一家主要的制药用品供应商,我们拥有90年的良好记录,保证为您带来安全、简便的安装服务。
- 可安全、简便地进行安装和验证
- ASME BPE认证,为您带来一致的高质量水平
- 提高产品纯度和安全性

阿法拉伐 Pharma-X
这款紧凑的换热器采用独特的套管式设计,无内部焊缝,产品侧可完全排水,是使用点冷却的完美选择。 即使在不使用时(待机模式),它也能保持消毒状态,同时还能提供高剪切力和高湍流度,并确保最佳的传热效率。它的低滞留体积和换热器快速响应意味着几秒钟之内就可以提供冷水,从而将用水浪费降至最低。
- 即插即用设计,便于安装
- 减少昂贵的制药用水的浪费
- 最小化生物膜积存风险
- 提供即时制冷

阿法拉伐 Pharma-line
这种优质管壳式换热器专为满足制药用水系统要求而设计,可同时用作加热器和冷却器。除了换热器通常的防止污染的功能外,阿法拉伐Pharma-line还有一个值得一提的特点,那就是采用了双管板的卫生设计,便于检测是否发生泄漏。
- 采用特别高品质、经严格控制的制造技术,包括焊接、管道膨胀性能、管道弯曲以及抛光,使得阿法拉伐Pharma-line成为制药用水分配系统换热器的最佳选择之一。我们还为您提供特有的可进行检测的内管包。
- 配备有完整、便于使用的阿法拉伐Q-doc文件包,可安全、简便地进行安装、校验、操作和维护 。

阿法拉伐 Sani SB
阿法拉伐Sani SB旋转喷头是制药用水分配回路储罐的最佳选择,为罐壁进行均匀润湿,以防止被动层遭到破坏、降解或喷嘴内被铁腐蚀,并将出现铁丹红的风险降至最低。 依托水膜运行,无需轴承,仅有少量移动部件。可快速、简便地进行调试、校验,延长使用寿命。
- 将罐内出现铁丹红的风险降至最低
- 简化了目前的静态喷淋球的安装和更换过程

阿法拉伐电导率传感器
该装置具有高精度和卫生设计,用于测量制药用水系统的电导率和温度。这些测量值是公认的控制制药用水系统中的离子杂质的最佳方式之一。
- 对制药工艺用水传导电流的能力进行准确可靠的测量

阿法拉伐液位开关
该卫生液位开关适用于制药用水系统,可提供准确可靠的储罐液位远程示值。
- 快速准确显示储罐液位,提高工艺可靠性

阿法拉伐温度传感器
这款紧凑、卫生的测量装置可以提供制药用水系统中工艺温度的准确示值。
- 在可配置的触摸屏上进行快速、准确的温度测量
- 显示当前温度值以及一段时间内的温度变化

